Recent Work
Buckingham Road
Project Name
Buckingham Road
Project Type
Community Building
Project Category
Community
Project Status
Completed
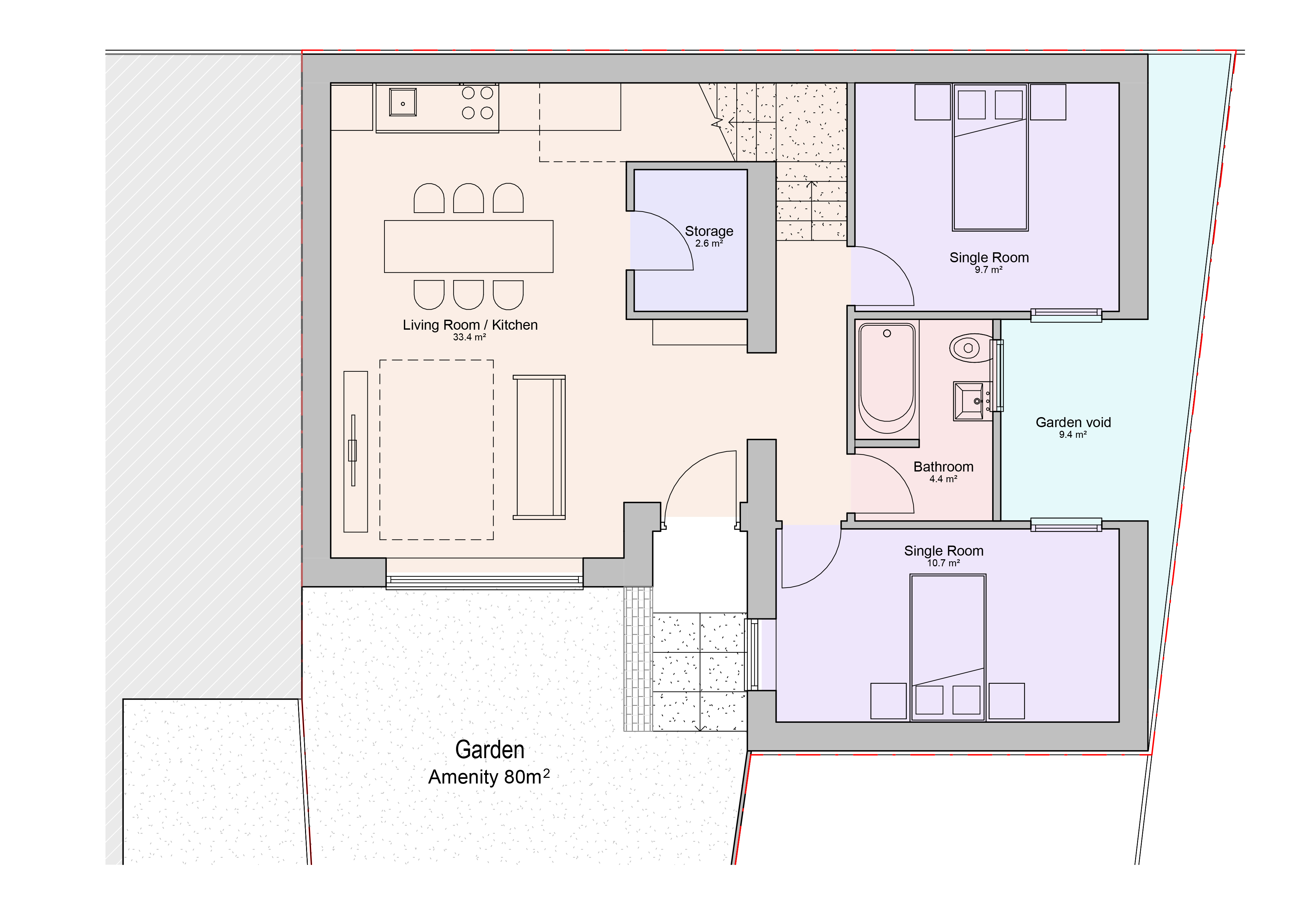
The proposal optimises the use of the site, a garden plot to the rear of the host property. The walls of the building enclose carefully positioned courtyards, providing privacy for the occupants and neighbours. Openings to the courtyards, along with rooflights, give each room daylight and ventilation. The house is partially sunk into the ground, allowing for a second storey without being overbearing. A green roof aids biodiversity, whilst brick textures animate the façade.


