Recent Work
The Red Cottage
Project Name
The Red Cottage
Project Type
Community Building
Project Category
Community
Project Status
Completed
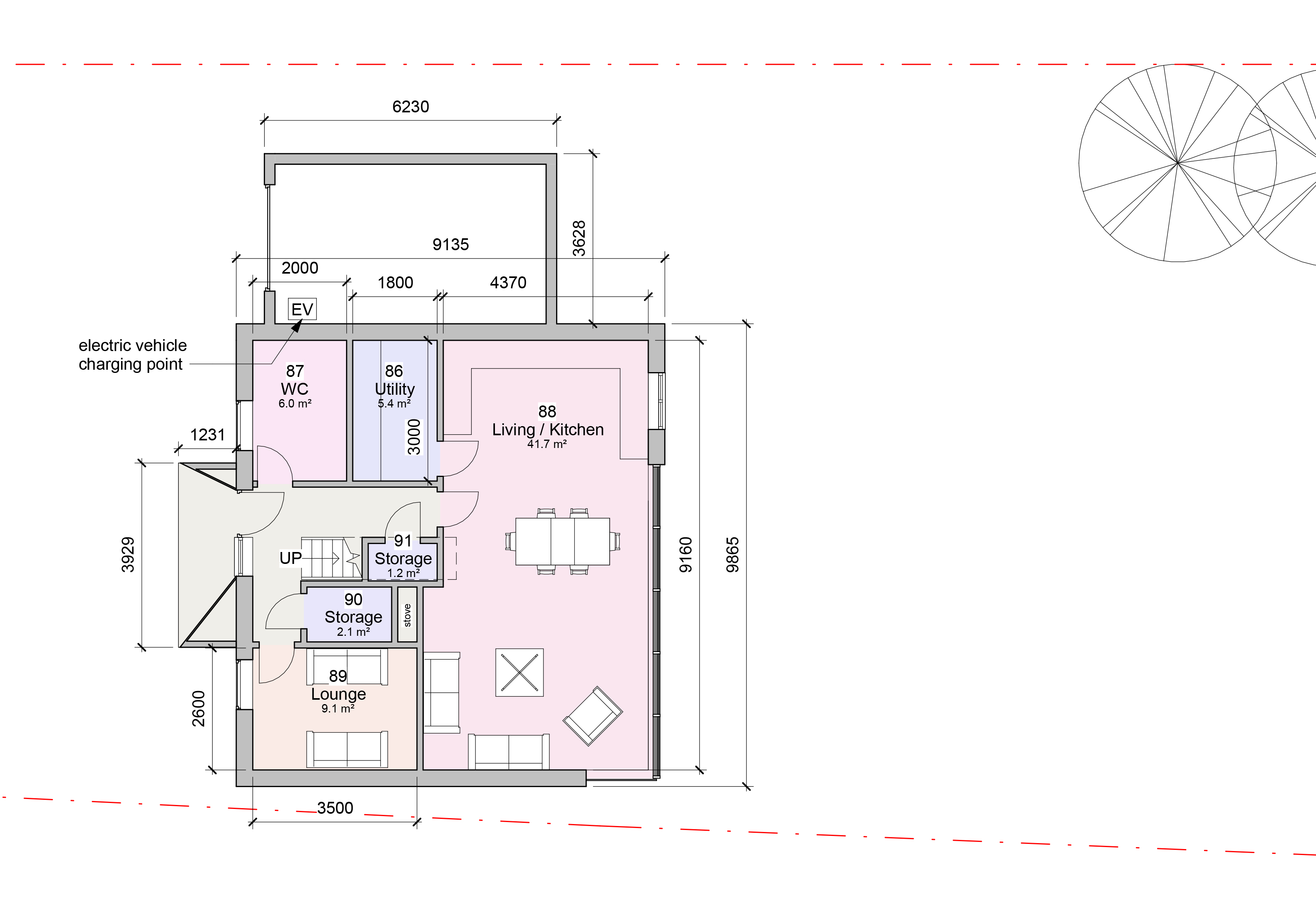
The site for this private house sits within the grounds of an 18th Century Grade II listed mansion. The proposal borrows the proportions of the openings of its neighbour to reference the pleasing and balanced facades of Georgian era houses. The house itself is contemporary however, as stated by a contemporary portico. To the rear, large openings maximise views out into the deep garden and open countryside. Its simple rectilinear plan form is intended to allow airtightness and to minimise heat loss.




