Project Name

Manor Road

Project Type

3 Storey Building

Project Category

Apartment

Project Status

Completed


Samson Space

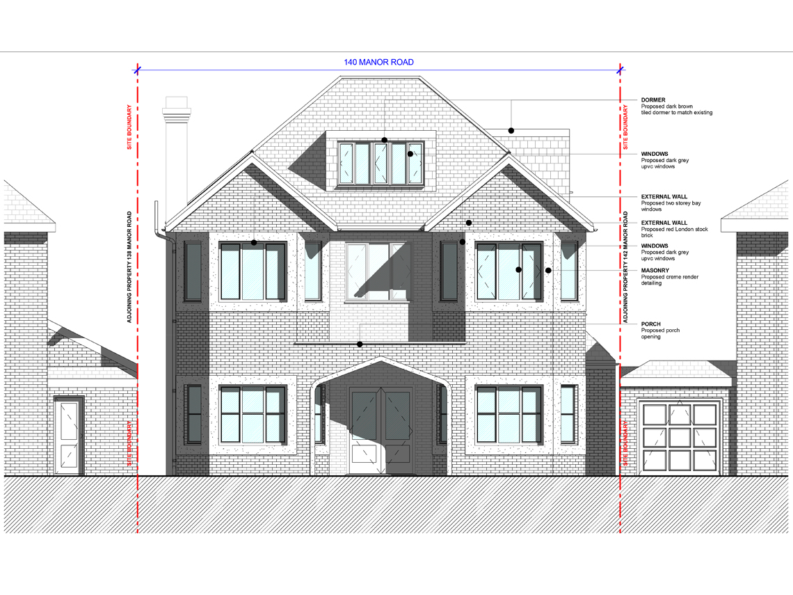
House redesign with extensions at ground, first and second floor. The front of the house was redesigned completely to offer a symmetrical, contemporary elevation in a traditional brick elevation. The roof of the property has been entirely redesigned to appropriate the new footprint of the house. This generous home also makes use of the extensions at the rear of the property which create a more open and connected living arrangement. This proposal has recently been approved by the Planning Authority with plans of construction for the summer.

Samson Space
Samson Space
Samson Space